Hopp til hovedinnhold
Publisert 23. juni 2021 | Oppdatert 23. juni 2021

Skoleråd: – Kroppen er hellig for den som tror at verden er skapt av Gud

Bilde

NYTT OG GAMMELT: Den nye idrettshallen vil ligge vegg i vegg med  det tidligere Florida sykehus, eller St. Franciskus Hospital, som sto ferdig i 1937, og er tegnet av Ole Landmark. Sykhusbygningen huser i dag St. Paul gymnas, Illustrasjon: Norconsult 

 

 

Høsten 2022 vil elevene ved St. Paul gymnas kunne boltre seg i ny, stor idrettshall vegg i vegg med dagens skolebygg.

 

Tekst: Petter T. Stocke-Nicolaisen

 

Styret ved St. Paul gymnas og Oslo katolske bispedømmes finansråd har godkjent planene om ny idrettshall ved skolen. Kontrakt med entreprenør ble signert tirsdag 15. juni.

– Gravearbeidene er allerede i gang. Entreprenøren startet så snart kontakten var signert, sier gymnasrektor Petter Furholm Gjessing.

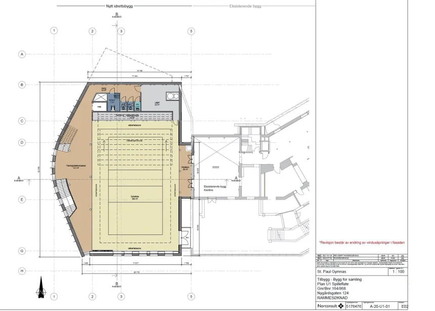
Tilsammen vil hallen koste 46 millioner kroner. Bruksarealet blir på hele 2050 kvadratmeter, mens det bebygde arealet er på 769 kvadratmeter. Tilbygget er på tre etager, og kommer til å romme en spilleflate på 16 x 24 meter.    

Underveis i prosjekteringen av bygget kom Byantikvaren, VFK kulturminnefaglig og andre instanser med innvendinger mot bygget. For eksempel skriver Byantikvaren at hun ikke er «overbevist om materialvalg eller løsning for ytterfasade mot vegg».

– Er dette allerede ivaretatt, eller noe dere arbeider videre med? 

– Dette er ivaretatt i nye runder med byantikvaren, så det er i orden nå. Bildene viser hvordan det kommer til å se ut, opplyser Gjessing.

 

FØRSTE SPADETAK: Rektor Petter Furholm Gjessing (t.v.)
og styrelederTom Schelderup Skare ved St. Paul gymnas. Foto: St. Paul gymnas
  

Samlingssted for alle
Bilde

Rektor Gjessing vedgår at det er komplisert å ha byggeplass og skole på nesten samme sted. Men han forsikrer at de vil klare å ivareta begge oppgaver.  

­– Skolen har god støyskjerming, slik at elevene ikke blir forstyrret av byggingen, sier rektoren, som regner med at bygget står ferdig 23. september 2022.

– Hva betyr en ny idrettshall for elevene og skolen? 

– Det betyr veldig mye for skolen at vi nå får en idrettshall, sier Gjessing og påpeker at elevene endelig kan drive idrett i nærheten av klasserommene. Det blir dermed slutt på å låne idrettshall og reise dit.

– Skolen får nå også et sted, der alle kan samles. Det kan brukes til konserter, samlinger og sosiale arrangementer, i tillegg til idrett, sier han.

Gjessing trekker frem at det har betydd mye for skolen at biskop Eidsvig og administrasjonen i OKB har støttet prosjektet, og hjulpet skolen med å få det hele på plass.

– Det er svært gledelig at OKB satser på sine skoler. Det er en styrke for oss å ha en solid eier i ryggen, sier han.  

 

Solide aktører

Den nye idrettshallen er tegnet av arkitektene i Norconsult, et byrå som arbeider med samfunnsplanlegging, prosjektering og arkitektur. De har ca. 200 ansatte bare ved kontoret i Bergen. Brutto omsetning for konsernet var på nesten 7 mrd i 2020. 

– Tanken har vært at bygget skal være en fortsettelse av det nåværende bygget. Det skal likevel være så ulikt at en kan se at det er bygg som har kommet til senere, sier rektor Gjessing.

Han mener gymnaset får et flott og funksjonelt bygg, som står i stil med Ole Landmarks bygg fra 1937

Skolen har valgt LAB som entreprenør etter anbudsrunde med vurdering av både pris og løsninger. 

 

LIKT OG ULIKT: – Tanken har vært at bygget skal være en fortsettelse av det nåværende bygget. Det skal likevel være så ulikt at en kan se at det er bygg som har kommet til senere, sier rektor Petter Gjessing ved St. Paul gymnas. Illustrasjon: Norconsult

Bilde

 

HELHETLIG TANKEGANG: – Kroppen er hellig for den som
tror at verden er skapt av Gud,da må katolske skoler også tilby god kroppsøving,
mener skoleråd i OKB Anne-Rigmor Stock Evje. Foto: Petter T. Stocke-Nicolaisen

Støttet av biskopen
Bilde

St. Paul gymnas signerte tirsdag 15. juni avtale med entreprenør LAB om oppføring av ny idrettshall, som allerede under oppføring. Prislappen er 46 millioner kroner. 

– Hvordan har OKB stilt seg til prosjektet?

– Idrettshallen bygges på Oslo katolske bispedømmes grunn, og OKBs skolekontor bidrar med pengegave og deler av lånesummen. Jeg har derfor trengt å støtte meg på kompetansen fra diosøsanøkonom Sindre Bostad, eiendomssjef Hai-Nam Vy og økonomisjef Mona Fallin. Forberedelsene har vært omfattende. Derfor var det gledelig at finansrådet etter grundig gjennomgang av saken gav sin tilslutning til prosjektet, og at biskopen fulgte anbefalingen. Biskopen har også lenge sett gymnasets behov for egen idrettshall. Faget kroppsøving er som kjent et fag samtlige elever må ha gjennom de tre skoleårene. Nå forsterker den nyopprettede idrettslinjen dette behovet, sier skoleråd Anne-Rigmor Stock Evje.

Hun tror nybygget blir udelt positivt for gymnaset, og regner med at idrettshallen gjør det attraktivt for enda flere ungdommer å søke elevplass. Det vil sikre skolens økonomi.

–  «Holistisk menneskesyn» kan lett bli et svulstig uttrykk uten innhold. Derfor er det nødvendig å konkretisere hva som ligger i den katolske skoles oppdrag med å utvikle unge mennesker åndelig, intellektuelt, sosialt og fysisk. I motsetning til den gnostiske dualismen, hvor materien og dermed også menneskets kropp er ond og står i motsetning til det åndelige, er kroppen hellig for den som tror at verden er skapt av Gud. Med andre ord skal katolske skoler legge til rette for at elevene også får utfolde seg fysisk, og hva kan man da ikke få utrettet i en idrettshall!

 

Ivaretar hele mennesket

Det skjer stadig noe nytt ved de katolske utdanningsinstitusjonene i Bergen – og de oppnår i tillegg svært gode resultater. I januar 2021 kunne katolsk.no melde at stadig flere av elevene ved St. Paul gymnas består eksamen og fullfører opplæringen på normert tid. De scorer 100 av 100 på Utdanningsdirektoratets skala for sin innsats for å hjelpe elever gjennom hele skoleløpet.

– Min forklaring på at det skjer noe nytt – og at resultatene er gode – er at de katolske skolene i Bergen har dyktige og kreative lærere, som gjennom årene har sett hva det vil si å skape god skole for barn og ungdommer. Når så lederne er trygge nok i sitt lederskap til å slippe løs lærernes profesjonalitet, er forholdene lagt til rette for det vi ser av nyskapende undervisning. At min forgjenger, den visjonære entreprenøren Gjermund Høgh, bokstavelig talt har fulgt St. Paul skole fra barnsben av via stilling som lærer og rektor frem til han ble skoleråd, kan ikke undervurderes. Gjermund er en ekte bergenser som har lagt hele sin sjel i å bygge to katolske skoler i Bergen, en grunnskole og et gymnas. Jeg tror denne korte oppsummeringen kan forklare hvorfor det stadig skjer noe nytt ved skolene i Bergen, oppsummerer skoleråd Evje.

 

Bilde

STOR BOLTREPLASS: Tilsammen vil hallen koste 46 millioner kroner. Bruksarealet blir på hele 2050 kvadratmeter, mens det bebygde arealet er på 769 kvadratmeter. Tilbygget er på tre etager, og kommer til å romme en spilleflate på 16 x 24 meter.  Illustrasjon: Norconsult

 

Fakta om St. Paul gymnas

  • Etablert: 2012
  • Adresse: Florida, Bergen sentrum
  • Rektor: Petter Furholm Gjessing
  • Antall lærere: ca. 50
  • Antall elever: ca. 400 fra høsten 2021
  • Programtilbud: studiespesialiserende (ordinært, universitetslinje, musikk, toppidrett), påbygg for elever med yrkesfag til studiespesialiserende og idrettsfag
  • Les mer om skolen på stpaulgymnas.no

 

Les mer